Vanamotie 13
00930, Marjaniemi, Helsinki
375 000 €
597 m²

Tätä asuntoa myy Päivi Ikonen, Myyntipäällikkö, LKV
Huoneistokeskus Oy | Helsinki, Kylänvanhimmantie

Sijainti
Asuntoesittely
Loistava tilaisuus rakentaa uusi koti Marjaniemen korkeimmalle paikalle!
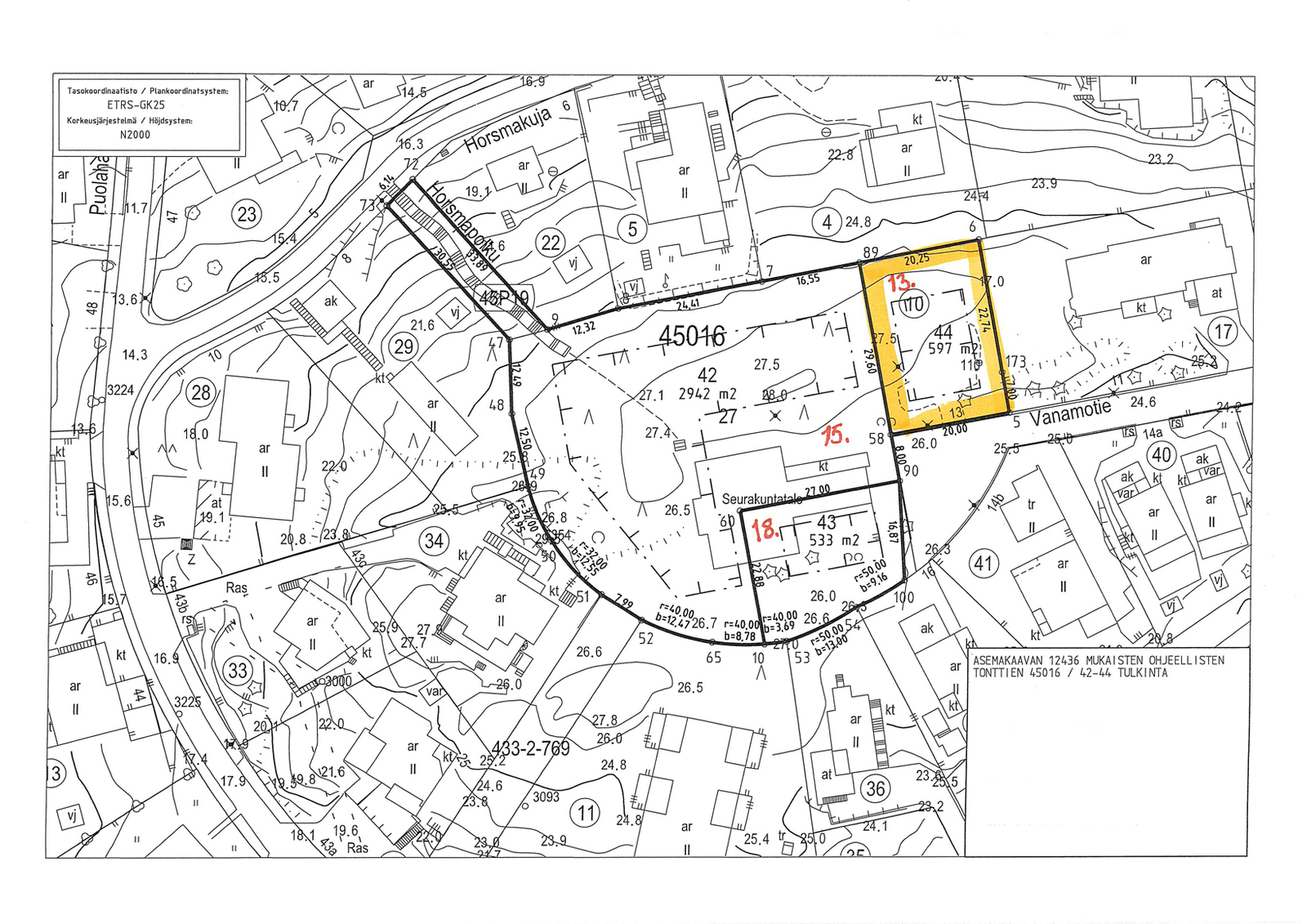
Omakotitalotontti Puolaharjun päällä, päättyvän tien varrella. Helppo kulkuyhteys suoraan kadulta. Tontin pinta-ala on 597 m², jossa rakennusoikeutta yhdelle omakotitalolle 200 kem². Maalämpömahdollisuus.
Pohjakuva

Perustiedot
- Sijainti
- Vanamotie 13, 00930, Marjaniemi, Helsinki
- Kohteen tyyppi
- Omakotitalotontti
- Kohde myydään vuokrattuna
- Ei
- Vapautuminen
- Heti
Hinta ja kustannukset
- Velaton hinta
- 375 000 €
- Myyntihinta
- 375 000 €
Tilat ja materiaalit
Lisätiedot
Taloyhtiö ja kiinteistö
- Tontin pinta-ala
- 597 m²
- Tontin omistus
- Oma
- Tontin tyyppi
- Tasamaatontti
- Tontin myyntityyppi
- Koko tontti
- Tontin tiedot
- maalämpömahdollisuus
- Käyttö/luovutusrajoitukset
- asuinkäyttö
- Rakennusoikeus
- 200
- Lisätietoa rakennusoikeudesta
- AO II
- Lisätietoja liikenneyhteyksistä
- bussit, metro Itäkeskus. pikaraitiolinja 15
- Palvelut
- Itäkeskuksen monipuoliset palvelut lähietäisyydellä
- Koulut
- alueella
- Kaavatilanne
- Asemakaava
- Kaavoitustiedot
- Helsingin kaupunki p. 09 310 1691 Kaavamuutos tullut voimaan 8.7.2019
