Vanha Suutarinkyläntie 10
00740, Töyrynummi, Helsinki
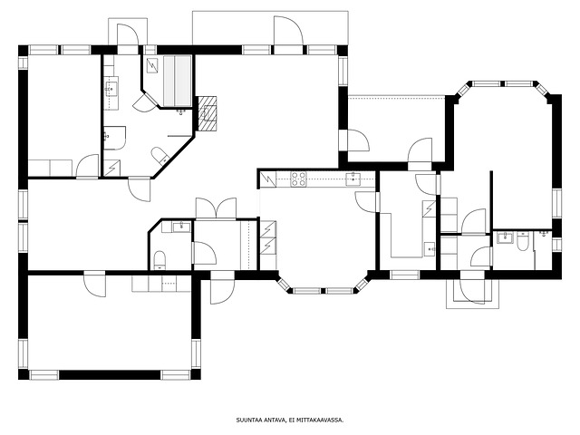
4-5 h, k, 2 x kh/wc, s, wc, lasitettu terassi, at
485 000 €
141 m²
Tätä asuntoa myy Maaret Aratie, Kiinteistönvälittäjä, LKV
Huoneistokeskus Oy | Helsinki, Kylänvanhimmantie

Sijainti
Asuntoesittely
Tervetuloa tutustumaan viihtyisään omakotitaloon rauhallisella pientaloalueella palveluiden läheisyydessä! Tässä yksitasoisessa kodissa yhdistyvät tilavuus, moderni mukavuus ja idyllinen sijainti täydellisesti.
Astuessasi sisään huomaat heti talon avaran tilan tunteen ja valoisan ilmapiirin. Olohuoneen isoista ikkunoista tulvii valoa ja varaavan takan lämpö luo tunnelmaa. Kodin sydän on tyylikäs ja toiminnallinen keittiö, joka on hyvin varusteltu ja tarjoaa runsaasti työskentelytilaa ruoanlaittoa varten. Tilat ovat erityisen muunneltavat, toisessa päädyssä erillinen yksiö omalla sisäänkäynnillä. Makuuhuoneita mahdollista tehdä nykyistä enemmän, tilavia huoneita jakamalla.
Kylpyhuoneet, sauna ja erillinen wc uusittu 2022.
Lasitettu terassi on kuin lisähuone ja se kutsuu nauttimaan ulkoilmasta ja auringosta ympäri vuoden. Voit rentoutua siellä aamukahvin äärellä tai järjestää vaikkapa grillijuhlat ystävien kanssa omalla isolla pihalueella. Lapsille piha on erinomaisen turvallinen ja hieno tila leikeille. Autotalli.
Kodin sijainti on ihanteellinen perheille, sillä alueella on useita kouluja ja päiväkoteja lähellä. Lisäksi alue tarjoaa monipuoliset ulkoilumahdollisuudet ja liikenneyhteydet moneen suuntaan autolla tai julkisilla liikennevälineillä.
Tämä kodikas 2024 kuntotarkastettu omakotitalo on täydellinen valinta sinulle, joka arvostat tilaa, mukavuutta ja rauhallista asuinympäristöä. Tule tutustumaan ja ihastu!
Perustiedot
- Sijainti
- Vanha Suutarinkyläntie 10, 00740, Töyrynummi, Helsinki
- Huoneluku
- 5
- Asuinpinta-ala
- 141 m²
- Muu pinta-ala
- 0 m²
- Kokonaispinta-ala
- 141 m²
- Lisätiedot pinta-alasta
- Talon pinta-aloja ei ole tarkistusmitattu. Tämän vuoksi pinta-alat saattavat poiketa olennaisestikin nykystandardien mukaan laskettavasta huoneistoalasta. Talon todellinen asuinpinta-ala voi siten olla esitteessä ilmoitettua suurempi tai pienempi. Pinta-ala tieto saatu Helsingin kaupungin kaavaayksikön tiedoista ja myyjältä.
- Kohteen tyyppi
- Omakotitalo
- Kerros
- 1
- Rakennusvuosi
- 1994
- Käyttöönottovuosi
- 1994
- Kohde myydään vuokrattuna
- Ei
- Vapautuminen
- 2 kk/sopimuksen mukaan
Tilat ja materiaalit
- Keittiön kuvaus
- Puustelli- keittiö, kodinkoneet ja kalusteet uusittu 2018
- Keittiön lattiat
- Vinyyli
- Keittiön seinät
- Maali
- Keittiön varusteet
- Mikroaaltouuni, jääkaappi, erillisuuni, erillinen pakastin, astianpesukone, ja kiinteät valaisimet, liesituuletin / hormi, liesitaso
- Liesi
- erillisuuni liesitaso
- Kylpyhuoneen seinät
- Kaakeli
- Kylpyhuoneen lattiat
- Laatta
- Kylpyhuoneen varusteet
- Suihkukaappi, suihkuseinä, allaskaappi, suihku, peili, lattialämmitys, wc-istuin, ja kiinteät valaisimet
- WC Lukumäärä
- 1
- WC:n lattiat
- Laatta
- WC:n seinät
- Kaakeli
- Makuuhuoneet
- Isomman makuuhuoneen voi jakaa kahdeksi huoneeksi (on ollut jaettuna aiemmin)
- Makuuhuoneiden lukumäärä
- 3
- Makuuhuoneiden seinät
- Tapetti ja maali
- Makuuhuoneiden lattiat
- Vinyyli
- Olohuoneen seinät
- Tapetti ja maali
- Olohuoneen lattiat
- Vinyyli
- Kodinhoitohuoneen varusteet
- Pöytätaso, pesuallas, pyykkikaapit, pesukoneliitäntä, lattiakaivo, ja lattialämmitys
- Kodinhoitohuoneen seinät
- Maali
- Kodinhoitohuoneen lattiat
- Laatta
- Kodinhoitohuone
- toinen lämminvesivaraaja kodinhoitohuoneessa
- Kohteen säilytystilat
- Ulkovarasto
- Sauna
- Kyllä
- Kiuas
- Sähkökiuas
- Takka
- Takka
Lisätiedot
- Asunnon kunto
- Hyvä
- Muut tilat
- Tuulikaapeissa on kaapistot ja laattalattia, maalatut seinät
- Muuta kauppaan kuuluvaa
- Lisätietoja sisältyvistä varusteista: ilmalämpöpumppu, keskuspölynimuri, lämminvesivaraaja, pihavarusteet, pyykinkuivausteline, sälekaihtimet/rullaverhot, verhotangot
- Muut kaupan kannalta merkittävät tiedot
- Lumon lasitettu terassi n. 11,34 m2 rakennettu 2023. Lupa saatu autokatokselle, johon ovet on lisätty myöhemmin.
Taloyhtiö ja kiinteistö
- Tontin pinta-ala
- 786 m²
- Tontin omistus
- Oma
- Tontin tyyppi
- Tasamaatontti
- Tontin myyntityyppi
- Koko tontti
- Käyttö/luovutusrajoitukset
- asuinkäyttö
- Rakennusmateriaali
- Puu
- Lämmitysjärjestelmä
- Sähkö Tyyppi: sähköinen lattialämmitys Ilmalämpöpumppu Puu uuni/takka, sähköinen lattialämmitys
- Kattotyyppi
- harjakatto
- Katon kunto
- hyvä
- Katemateriaali
- tiilikatto
- Rakennusoikeus
- 157
- Lisätietoa rakennusoikeudesta
- rakennusoikeus käytetty
- Rakennusoikeus e-luku
- 0.2
- Kohteesta on energiatodistus
- Kyllä
- Energialuokka
- E2013
- Lisätietoja liikenneyhteyksistä
- bussit, juna Malmilta ja Tikkurilasta
- Tie perille
- Kyllä
- Palvelut
- K-Market Suutarila, Siltamäen ostoskeskus, Suutarilan terveysasema, Tammiston, Malmin ja Tikkurilan monipuoliset palvelut
- Koulut
- alueella
- Kaavatilanne
- Asemakaava
- Kaavoitustiedot
- AO II, erillispientalojen korttelialue
- Kuntotutkimus tehty
- 01.01.2024
- Lisätietoa asbestikartoituksesta
- Rakentaminen on aloitettu ennen vuotta 1994 eikä täydellistä asbestikartoitusta ole tehty. Asbestikartoitus on tehty kylpyhuoneiden ja wc:n osalta.
- Muut rakennukset
- Autotalli ja varasto
- Lisätietoa muista rakennuksista
- autotalli/varasto, puurakenteinen, rakennettu 1994 peltinen ulkovarasto