Vanha Turuntie 110
27320, Polttila, Ihode, Pyhäranta
6h+k+saunaos.+autotalli
70 000 €
180 m²

Tätä asuntoa myy Kiinteistötoimisto Asko Vainio Ky LKV
Sijainti
Asuntoesittely
Tilava ja viihtyisä koti Polttilan kylässä.
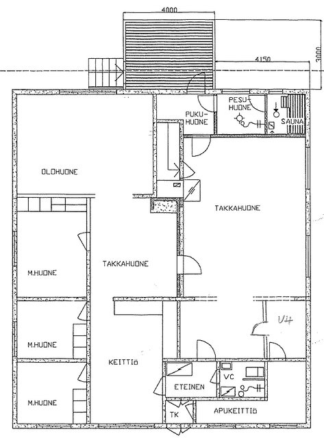
Etsitkö tilavaa ja viihtyisää kotia ? Tämä omakotitalo Pyhärannan Polttilassa tarjoaa tilaa ja mukavuutta suuremmallekin perheelle. Asuintilat jakautuvat kuuteen huoneeseen, keittiöön ja saunaosastoon.
Talossa on tällä hetkellä kolme makuuhuonetta, mutta tarvittaessa olohuoneesta saisi mahtavan päämakuuhuoneen. Talossa on kaksi takkahuonetta, joista isompi on remontoitu vuonna 2003 ja varustettu takalla ja leivinuunilla. Takkahuonetilat toimivat loistavasti oleskelutiloina isommallekin porukalle. Keittiössä on myös mukavasti tilaa. Kaapistot on uusittu 2000-luvulla ja ovat edelleen siistikuntoiset.
Kylpyhuoneessa on kaksi suihkua ja saunassa pääsee nauttimaan rentouttavista löylyistä vuolukivikiukaan lämmössä. Pesu- ja saunatilat on tehty vuonna 2003. Katetulla terassilla on kiva istuskella iltaisin. Tilavassa wc-tilassa on paikka pyykinpesukoneelle ja seinän takana on kätevästi vaatehuone sekä pieni kodinhoitotila.
Talon kellarikerroksessa on varastotilaa. Talon lämmitys onnistuu öljyllä ja puilla (kaksoispesäkattila). Lisäksi talossa on yksi ilmalämpöpumppu. Pihapiiristä löytyy vanha pihasauna ja puuvaja.
Sijainti on erinomainen, sillä Ihoden kyläkoulu on vain 2 kilometrin päässä, ja Rauman sekä Laitilan palveluihin pääset vain 15-20 minuutin ajomatkalla.
Talon sijaitessa pikkuteiden risteyksessä, on tästä hyvä lähteä liikkeelle. Itse piha-alue on kuitenkin suojaisa ja rauhallinen.
Tämä koti on erinomainen valinta niille, jotka arvostavat tilaa, rauhallista ympäristöä ja hyviä kulkuyhteyksiä. Tartu tilaisuuteen ja tee tästä talosta oma kotisi!Perustiedot
- Sijainti
- Vanha Turuntie 110, 27320, Polttila, Ihode, Pyhäranta
- Huoneluku
- 6
- Asuinpinta-ala
- 180 m²
- Muu pinta-ala
- 60 m²
- Kokonaispinta-ala
- 240 m²
- Pinta-alan peruste
- Pinta-ala ei ole tarkistusmitattu ja todellinen pinta-ala voi olla suurempi tai pienempi, kuin ilmoitettu
- Lisätiedot pinta-alasta
- Ei tarkistusmitattu. Pinta-alat saattavat tämän ikäisissä kohteissa (rekisteröity ennen 01.01.1992) poiketa olennaisestikin asuinrakennusten nykyisten mittaustapojen ja standardien (SFS 5139) mukaan laskettavasta asuintilojen pinta-alasta. Pinta-ala voi siis olla edellä mainittua pienempi tai suurempi.
- Kohteen tyyppi
- Omakotitalo
- Rakennusvuosi
- 1962
- Kohde myydään vuokrattuna
- Ei
- Vapautuminen
- Sopimuksen mukaan
Tilat ja materiaalit
- Keittiön kuvaus
- Reilunkokoinen keittiö. Kaapistot uusittu 2011 ja ovat siistikuntoiset.
- Keittiön lattiat
- korkki
- Keittiön varusteet
- Jääkaappipakastin, liesi, liesituuletin, ja astianpesukone
- Liesi
- Keraaminen liesi
- Kylpyhuone
- Pesutila tehty nykyiselle paikalle 2003. Kahdet suihkut.
- Kylpyhuoneen seinät
- Kaakeli
- Kylpyhuoneen lattiat
- Laatta
- Kylpyhuoneen varusteet
- Suihku ja lattialämmitys
- WC Lukumäärä
- 1
- Erillinen WC
- Tilava wc, jossa korkeat kaapit ja tilaa pyykinpesukoneelle.
- WC:n lattiat
- Laatta
- WC:n seinät
- Kaakeli
- Makuuhuoneiden lukumäärä
- 3
- Makuuhuoneiden lattiat
- Parketti
- Olohuone
- Avara olohuone, jossa ilmalämpöpumppu.
- Olohuoneen lattiat
- Parketti
- Kohteen säilytystilat
- Kaapistot ja vaatehuone
- Sauna
- Kyllä
- Kiuas
- Sähkökiuas
- Saunan kuvaus
- Sauna tehty nykyiselle paikalle v. 2003. Saunassa on vuolukivikiuas.
- Takka
- Takka ja varaava takka
Lisätiedot
- Asunnon kunto
- Hyvä
- Terassi
- Kyllä
- Lisätietoja terassista
- Pukuhuoneesta kulku katetulle terassille.
- Muut tilat
- Kaksi takkahuonetta. Pienemmässä on avotakka, johon on asennettu takkasydän. Isompi takkahuone on remontoitu v. 2003 ja siellä on varaava takka, jossa on myös leivinuuni.
Taloyhtiö ja kiinteistö
- Tontin pinta-ala
- 1 825 m²
- Tontin omistus
- Oma
- Tontin tyyppi
- Rinnetontti
- Tontin myyntityyppi
- Koko tontti
- Rakennusmateriaali
- Puu
- Lämmitysjärjestelmä
- Öljy Puu Ilmalämpöpumppu
- Vesijohto
- Kunnallisvesi
- Lisätietoja vesiputkesta
- Pihalla on lisäksi kaivo.
- Viemäröinti
- Kunnallinen viemäriverkosto
- Kattotyyppi
- Auma
- Katemateriaali
- Pelti
- Kohteesta on energiatodistus
- Ei lain edellyttämää energiatodistusta
- Paikallistiedot
- Ihoden Asemalle (ruokapaikka) 400 m.
- Palvelut
- Raumalle 18 km. Laitilaan 13 km.
- Koulut
- Ihoden kyläkouluun 2 km.
- Asbestikartoitus
- Ei
- Lisätietoa muista rakennuksista
- Vanha pihasauna sekä puuvaja.
Tehdyt remontit
Katto on uusittu 1988.
Pesu- ja saunatilat sekä isompi takkahuone 2003.
Keittiön kaapistot 2000-luvulla.
