Vanhankyläntie 41
04400, Loutti, Järvenpää
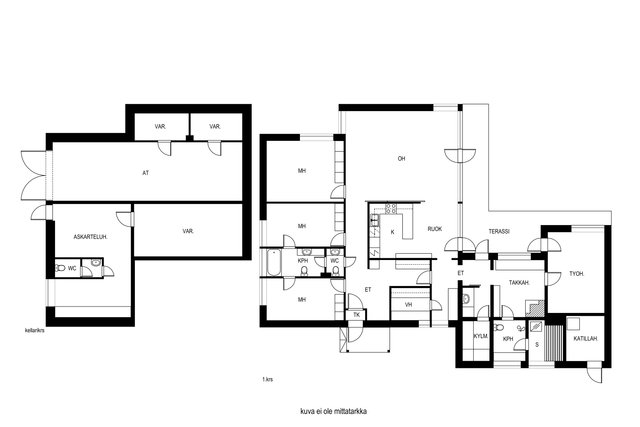
5h, k, kh, s, autotalli
215 000 €
1 649 m²

Tätä asuntoa myy Valtteri Parikka
Roof Järvenpää | ROOF LKV Keski-Uusimaa Oy

Sijainti
Asuntoesittely
Tontti loistavalla paikalla, jossa täysin saneerattava/purettava okt
Järvenpään Loutissa loistavalla paikalla sijaitseva tontti, jossa purettava omakotitalo. Talo on mahdollista myös saneerata, mutta asuinkuntoon saattaminen vaatii mittavan peruskorjauksen koko rakennuksen osalta.
Talossa on sattunut vesivahinko, jonka seurauksena pukuhuone ja takkahuone on purettu. Kunto on muuten alkuperäinen ja tämä kohde vaatii laajan perusparannuksen asuinkuntoon saattamiseksi.
Tontilla on rakennusoikeutta 412 k-m2. Tontille saa rakentaa kaksiasuntoisia asuinrakenuksia.
Tässä tarjolla hyvä tontti hyvältä paikalta. Järvenpään keskustan kaikki palvelut kävelyetäisyydellä. Koulut ja päiväkodit vain kivenheiton päässä.
Myynti, Esittelyt ja Lisätiedot:
Valtteri Parikka
0401614131
[email protected]Perustiedot
- Sijainti
- Vanhankyläntie 41, 04400, Loutti, Järvenpää
- Asuinpinta-ala
- 150 m²
- Muu pinta-ala
- 150 m²
- Kokonaispinta-ala
- 300 m²
- Pinta-alan peruste
- Pinta-ala ei ole tarkistusmitattu ja todellinen pinta-ala voi olla suurempi tai pienempi, kuin ilmoitettu
- Lisätiedot pinta-alasta
- Pinta-ala tiedot ovat suuntaa antavia.
- Kohteen tyyppi
- Omakotitalotontti
- Rakennusvuosi
- 1971
- Käyttöönottovuosi
- 1971
- Kohde myydään vuokrattuna
- Ei
- Vapautuminen
- Heti
Hinta ja kustannukset
- Velaton hinta
- 215 000 €
- Myyntihinta
- 215 000 €
- Sähköliittymä siirtyy
- Kyllä
- Neliöhinta
- 1 433,33 € / m²
Tilat ja materiaalit
Lisätiedot
Taloyhtiö ja kiinteistö
- Tontin pinta-ala
- 1 649 m²
- Tontin omistus
- Oma
- Tontin tyyppi
- Rinnetontti
- Tontin myyntityyppi
- Koko tontti
- Rakennusmateriaali
- Betoni ja tiili
- Lämmitysjärjestelmä
- Öljy
- Ilmanvaihto
- Painovoimainen ilmanvaihto
- Vesijohto
- Kunnallisvesi
- Viemäröinti
- Kunnallinen viemäriverkosto
- Kattotyyppi
- Pulpettikatto
- Katemateriaali
- Huopa
- Rakennusoikeus
- 412.25
- Lisätietoa rakennusoikeudesta
- Tontille saa rakentaa erillisiä talousrakennuksia joiden pinta-ala on yhteensä alle 50 k-m2
- Rakennusoikeus e-luku
- 0.25
- Paikallistiedot
- Halutulla Loutin alueella keskustan läheisyydessä.
- Palvelut
- Keskustan kaikki palvelut n. 600m Jäähalli, Uimahalli ja Liikuntahalli n. 2km
- Koulut
- Harjulan koulu n. 300m Järvenpään Lukio n. 1,9km Kartanon koulu n. 2 km
- Kaavatilanne
- Asemakaava
- Kaavoitustiedot
- Erillisten enintään kaksiasuntoisten pientalojen korttelialue. Tontti voi rakentaa useamman paritalon.
- Rakennusvaihe
- Valmis
- Asbestikartoitus
- Ei
