Vellamonkatu 12-14 A
00550, Hermanni, Helsinki
3h+k+kph+parveke
349 000 € (4 985,71 € / m²)
70 m²

Tätä asuntoa myy Sari Rossi, Myyntineuvottelija
Roof Helsinki | ROOF Group Oy

Sijainti
Asuntoesittely
Valoisa ylimmän kerroksen perheasunto puistomaisessa Hermannissa!
Vellamonkadulla, vehreän ja rauhallisen Hermannin sydämessä sijaitsee tämä tilava ja valoisa ylimmän kerroksen 70 m2 läpitalon kolmio, joka tarjoaa erinomaiset puitteet perhe-elämään. Asunnon pohjaratkaisu on toimiva, tilat avautuvat kauniisti läpi asunnon, ja luonnonvalo tulvii sisään eri ilmansuunnista koko päivän ajan.
Kodissa on erityisen tilava olohuone, joka kutsuu yhteisiin hetkiin, leikkeihin ja rentoutumiseen. Tänne mahtuu helposti suuri sohvaryhmä sekä ruokailutila, jolloin kokonaisuus muuntautuu vaivatta perheen eri elämäntilanteisiin. Makuuhuoneet ovat hyvän kokoisia, joissa järjestystä voi vaihdella.
Taloyhtiötä on huollettu säännöllisesti, mm. linjasaneeraus on toteutettu perinteisen menetelmin 2013 ja julkisivut sekä parvekkeet on kunnostettu 2018-2019 välillä. Taloyhtiössä on myös hissi.
Asunto kaipaa pientä pintaremonttia kylpyhuonetta lukuunottamatta, mikä tarjoaa loistavan mahdollisuuden päivittää kodista oman näköisesi kokonaisuus.
Puistomainen ympäristö, koulut, päiväkodit ja hyvät liikenneyhteydet tekevät sijainnista ihanteellisen lapsiperheelle, mutta myös kaikille, jotka arvostavat rauhallista asumista lähellä keskustaa.
TIEDUSTELUT JA YKSITYISESITTELYVARAUKSET:
Sari Rossi / 044 983 5981
[email protected]
Get a roof.
www.roof.fi
Harkitsetko asuntosi myyntiä? Varaa minulta maksuton arviokäynti, kerron samalla markkinatilanteesta, palveluistani ja tehokkaasta Roof-välityskonseptista. Suunnitellaan yhdessä seuraavat askeleet!
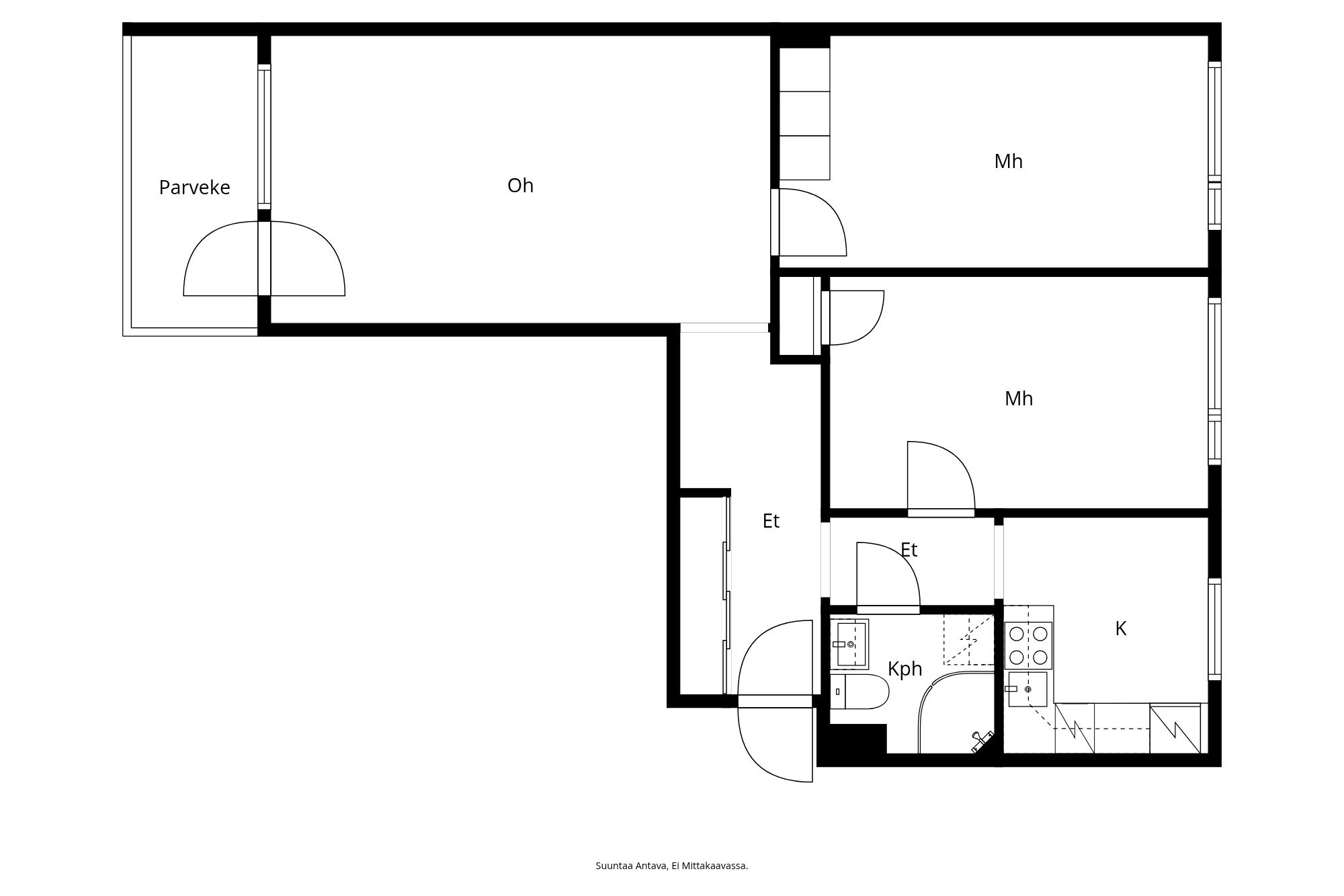
Pohjakuva

Perustiedot
- Sijainti
- Vellamonkatu 12-14 A, 00550, Hermanni, Helsinki
- Omistusmuoto
- Omistusasunto
- Huoneluku
- 3
- Asuinpinta-ala
- 70 m²
- Kokonaispinta-ala
- 70 m²
- Pinta-alan peruste
- Isännöitsijäntodistuksen mukainen, Yhtiöjärjestyksen mukainen, (Pinta-ala ei ole tarkistusmitattu ja todellinen pinta-ala voi olla suurempi tai pienempi, kuin ilmoitettu)
- Lisätiedot pinta-alasta
- Huoneiston pinta-ala on yhtiöjärjestyksen ja isännöitsijäntodistuksen mukaan 70 m². Pinta-alaa ei ole tarkistusmitattu. Edellä mainittu pinta-ala saattaa tämän ikäisessä kohteessa poiketa olennaisestikin huoneiston nykyisen ja rakentamisaikaisen mittaustapojen ja standardien mukaan laskettavasta pinta-alasta. Huoneiston todellinen pinta-ala voi siis olla yhtiöjärjestyksessä, isännöitsijäntodistuksessa ja esitteessä mainittua pienempi tai suurempi.
- Kohteen tyyppi
- Kerrostalo
- Kerros
- 4 / 4
- Rakennusvuosi
- 1956
- Käyttöönottovuosi
- 1956
- Kohde myydään vuokrattuna
- Ei
- Vapautuminen
- Heti
Hinta ja kustannukset
- Velaton hinta
- 349 000 €
- Myyntihinta
- 289 848,72 €
- Velkaosuus
- 59 151,28 €
- Yhtiövastike
- Hoitovastike 490 € / kk (7 € / m²), Rahoitusvastike 721 € / kk (10,30 € / os.), Yhtiövastike yhteensä 1 211 € / kk
- Lisätietoja vastikkeista
- Pääomavastike 4, linjasaneeraus, 5,00 €/os.lkm: 350 €/kk Pääomavastike 5, julkisivu, 5,30 €/os.lkm: 371 €/kk
- Saunamaksu
- 15 € / kk
- Vesimaksu
- 20 € / hlö / kk
- Neliöhinta
- 4 985,71 € / m²
- Lisätietoja maksusta
- Hallituksella valtuudet periä tarvittaessa ylimääräinen enintään kahden (2) kuukauden hoitovastiketta vastaava määrä yhtiön taloudellisen tilanteen niin vaatiessa ja vastaavasti jättää perimättä enintään kaksi (2) hoitovastiketta vastaava määrä. Hallitukselle valtuudet nostaa tai laskea rahoitusvastikkeen suuruutta yhtiön rahoituslainojen korkomuutosten niin vaatiessa tai salliessa. Valtuudet voimassa seuraavaan varsinaiseen yhtiökokoukseen saakka. Taloyhtiön hallitukselle on annettu valtuutus periä (tai olla perimättä) ylimääräistä vastiketta yhtiön taloudellisen aseman tai maksuvalmiuden sitä vaatiessa
Tilat ja materiaalit
- Keittiön kuvaus
- LATTIA: Korkkilaatta (muovi/vinyyli) SEINÄT: Maali / korkkilaatta VARUSTEET: Uuni, liesi, liesituuletin, jääkaappi, pakastin, astianpesukone, hana, allas
- Kylpyhuone
- LATTIA: Laatta SEINÄT: Laatta VARUSTEET: wc-istuin, suihkuseinä, pesukoneliitäntä, allaskaappi, peilikaappi, rättipatteri, koukkuja, seinäkaappi, bidee, lattialämmitys
- Makuuhuoneet
- LATTIA: Parketti SEINÄT: Maali VARUSTEET: Kaapisto
- Makuuhuoneiden lukumäärä
- 2
- Olohuone
- LATTIA: Parketti SEINÄT: Maali
- Säilytystilojen kuvaus
- Eteisessä kaapisto
- Kohteen säilytystilat
- Vinttikomero ja kellarikomero
- Sauna
- Ei
Lisätiedot
- Asunnon kunto
- Tyydyttävä
- Näkymät
- Sisäpihalle ja kadulle.
- Parveke
- Ulostyönnetty parveke
- Parvekkeen ilmansuunta
- Länsi
- Hissi
- Kyllä
Taloyhtiö ja kiinteistö
- Taloyhtiön nimi
- Asunto Oy Vellamonkatu 14
- Isännöitsijätoimisto
- Iskurit Oy
- Isännöitsijän nimi
- Lasse Palviainen
- Isännöitsijän sähköposti
- [email protected]
- Isännöitsijän puhelin
- 020 730 1330
- Taloyhtiön lisätiedot
- Taloyhtiöllä käytössä tili limiitti 15.000,00 euroa, käytetty per 24.11.2025 0,00 euroa.
- Tontin pinta-ala
- 1 635 m²
- Tontin omistus
- Vuokra
- Maanvuokraaja
- Helsingin kaupunki
- Tontin tiedot
- Vuokrantarkistusperusteena toimii elinkustannusindeksi.
- Tontin vuosivuokra
- 45 502,13 €
- Vuokra-aika päättyy
- 31.12.2070
- Rakennusmateriaali
- Betoni
- Lämmitysjärjestelmä
- Kaukolämpö
- Ilmanvaihto
- Painovoimainen ilmanvaihto
- Kattotyyppi
- Harjakatto
- Katemateriaali
- Tiilikate
- Lisätietoja kiinteistönhoidosta
- Huoltoyhtiö
- Kiinteistönhoidon lisätiedot
- Eeron Talonmiespalvelu Oy, Neljäs Linja 1, 00530 Helsinki. Puhelin: 0400 491 363, sähköposti: [email protected].
- Taloyhtiössä on
- Kuivaushuone, pyörävarasto, pesutupa, kaapeli-tv, väestönsuoja, ja mankeli
- Lunastusoikeus yhtiöllä
- Ei
- Lunastusoikeus osakkaille
- Ei
- Kohteesta on energiatodistus
- Kyllä
- Energialuokka
- E2018
- Energiatodistuksen voimassaolo
- 31.7.2033
- Taloyhtiöön kuuluu
- Yhtiössä on yhteinen laajakaista, ja sen maksiminopeus on 10M/10M.
- Liikenneyhteydet
- Bussipysäkki lähellä, sujuvat yhteydet omalla autolla, hyvät pyöräilytiet ja raitiovaunupysäkki lähellä
- Lisätietoja liikenneyhteyksistä
- Lähellä Hämeentiellä ratikkapysäkit 6 ja 8 sekä bussipysäkki. Myös pikaratikka 15 n. 600 m päässä, jolla pääsee nopeasti Redin tai Triplan kauppakeskuksiin.
- Paikallistiedot
- Hermanni on rauhallinen alue puistomainen asuinalue, jossa palvelut ovat kävelyetäisyydellä.
- Palvelut
- K-Market Sture n. 550 m, Alepa Vallila n. 650 m, Arabian kauppakeskus n. 1,1 km, Redi n. 1,4 km, Tripla n. 2,4 km, Kalasataman terveyskeskus n. 1,1 km.
- Koulut
- Vallilan ala-aste n. 350 m
- Taloyhtiön autopaikat
- Autopaikkojen jakamisesta yhtiössä on sovittu seuraavasti: Autopaikkojen tiedustelu Iskurit Oy:n asiakaspalvelusta, [email protected], puh. 020 730 1330
- Autotallit
- 3
- Taloyhtiöllä sauna
- Kyllä
- Kaavatilanne
- Asemakaava
- Lisätiedot kaavoituksesta
- Kantakaupungin vanhoja asemakaavoja ajantasaistetaan. Asemakaavat muutetaan vastaamaan todellista rakennettua tilannetta. Työn yhteydessä päivitetään myös rakennusten ja yleisten alueiden suojelua. Kaavojen ajantasaistaminen ei koske uudisrakentamisen hankkeita, vaan muutokset vaativat edelleen erillisen asemakaavamuutoksen tai poikkeamispäätöksen. Lisätietoja antaa Otso Huhtala, arkkitehti, p. (09) 310 37296. Nykyiselle Tukkutorin alueelle sekä sen pohjoispuolella sijaitsevalle asuinalueelle ja Agroksenmäelle laaditaan suunnitteluperiaatteet. Suunnittelualueelle on tarkoitus sijoittaa kulttuuri-, tapahtuma- ja tukkutoimintaa. Lisäksi alueelle tutkitaan asumisen sijoittamista. Alueen yhteyksiä Agroksenmäkeen parannetaan ja alueen liikenneratkaisuja selkeytetään. Hankkeesta vastaavat Heidi Peura, arkkitehti, p. (09) 310 26982 Valtteri Osara, arkkitehti, p. (09) 310 52676 Vallilan pohjoisosan alueella sijaitsevalle oppilaitostontille suunnitellaan täydennysrakentamista. Nykyisen oppilaitosrakennuksen tontin koillisreunasta erotetaan viisikerroksiselle asuinkerrostalolle oma tonttinsa. Oppilaitosrakennuksen suojelutarve arvioidaan kaavoituksen yhteydessä. Hankkeesta vastaavat Tommi Suvanto, arkkitehti, p. (09) 310 37032 Paula Leiwo, arkkitehti, p. (09) 310 23637 Helsingin kaupunki peruskorjaa Mäkelänkadun Hämeentien ja Kumpulantien välillä. Urakassa uusitaan vanhaa kunnallistekniikkaa ja toteutetaan kadulle entistä turvallisemmat liikennejärjestelyt, jotka huomioivat kaikki kulkumuodot. Lisäksi uusitaan katupuita. Työt kestävät noin kaksi vuotta. Lähialueella on käynnissä ja suunnitteilla useampi kaavamuutoshanke. Ostajan tulee tutustua lähialueen kaavoitushankkeisiin huolellisesti.
- Asbestikartoitus
- Ei
- Lisätietoa asbestikartoituksesta
- Kohde on valmistunut ennen vuotta 1994, eikä asbestikartoitusta ole tehty. Ennen vuotta 1994 valmistuneiden rakennusten korjaustöiden osalta otettava huomioon Laki eräistä asbestipurkutyötä koskevista vaatimuksista 684/2015 sekä Valtioneuvoston asetus asbestityön turvallisuudesta 798/2015. Mikäli huoneistossa aikoo tehdä tai teettää remontin, hänen tulee tietyissä tapauksissa teettää asbestikartoitus purettaviin materiaaleihin. Asbestikartoitusvelvollisuus ei koske rakennuksessa tehtäviä vähäisiä töitä, kuten reikien poraamista seiniin tai kattoon.
- Taloyhtiön kiinnitykset
- 2 197 800 €
- Taloyhtiön kiinnitysten päivämäärä
- Isännöitsijäntodistuksen päivämäärän mukainen
Tehdyt remontit
2000 Ikkunoiden uusinta
2007 Kattoremontti
2008 Lämmönsiirtimen uusimistyö
2010 Ikkunoiden karmiventtiileiden asennus
2011 Lukitusmuutos (Iloq-järjestelmä)
2013 Perinteinen linjasaneeraus (sis. sähkösaneeraus, ullakon saunaosasto, pyöräkellarin laajennus, pesutuvan ja kuivaushuoneen rakentaminen, taloyhtiön hallussa olevan liiketilan ja huoneiston A2 saneeraus)
2015 Julkisivun ja parvekkeiden kuntotutkimus
2019 Pihan kunnostaminen
2019 Pihan asfaltointi
2019 Autotallien ovien uusiminen
2019 Ikkunoiden vesipeltien uusiminen
2018-2020 Julkisivujen saneeraus ja parvekkeiden uusiminen
2022 Ilmanvaihdon nuohous ja ilmamäärien säätö
2025: Yhden huoneiston hormilinjan korjaukset
2025: Palovaroittimet yhtiön kunnossapitovastuulle
Tulevat remontit
2026-2030: Piha: Jäteastiasuojan hankinta
2026-2030: Ulko-ovien uusiminen
2028: Kuivien yleistentilojen lattioiden maalaus arvio
2030: Patterien termostaatti venttiilit arvio
2030: Lämmönjakokeskus arvio
2030: Hissit: PTS-mukainen arvio
Lukijan on huomattava, että kunnossapitotarveselvitys on hallituksen näkemys kunnossapitotarpeista viiden vuoden aikana. Päätökset mahdollisesti käynnistettävien kunnossapitotöiden ja muutostöiden suunnittelusta, toteutuksesta sekä rahoituksesta tehdään yhtiökokouksessa erikseen. Kunnossapitotarveselvityksessä mainitut toimenpiteet saattavat aikaistua tai myöhentyä. Myyjä ei vastaa taloyhtiön myöhemmin päättämistä kunnossapitotoimenpiteistä ja niistä aiheutuvista huoneistolle tulevista kustannuksista.
