Venlankatu 6 A
05830, Viertola, Hyvinkää
2h+avok+kph+parveke (YJ mukaan 2h+kk+kph)
83 000 € (2 075 € / m²)
40 m²
Tätä asuntoa myy Sami Paulig, Asuntomyyjä
Huoneistokeskus Oy | Helsinki, Runeberginkatu

Sijainti
Asuntoesittely
Upea uusittu parvekkeellinen kaksio keskustan palvelujen äärellä.
Kauniit modernit pinnat, valoisat tilat.
Keittiö, lattiat, kaapistot, seinät ja katto uusittu 2025.
Kylpyhuone uusittu putkiremontin yhteydessä 2016, paikka pesukoneelle.
Erinomainen yhtiö, hissitalo.
Hoitovastike 248€/kk, sisältäen lämmityksen (kaukolämpö).
Valokuitu ja kaapeli-tv.
Koneellinen poistoilma.
Lähellä keskustan palvelut ja juna-asema.
Tämänkin kodin myy:
Sami Paulig
040 5332289
Autan myös sinun kotisi myynnissä!
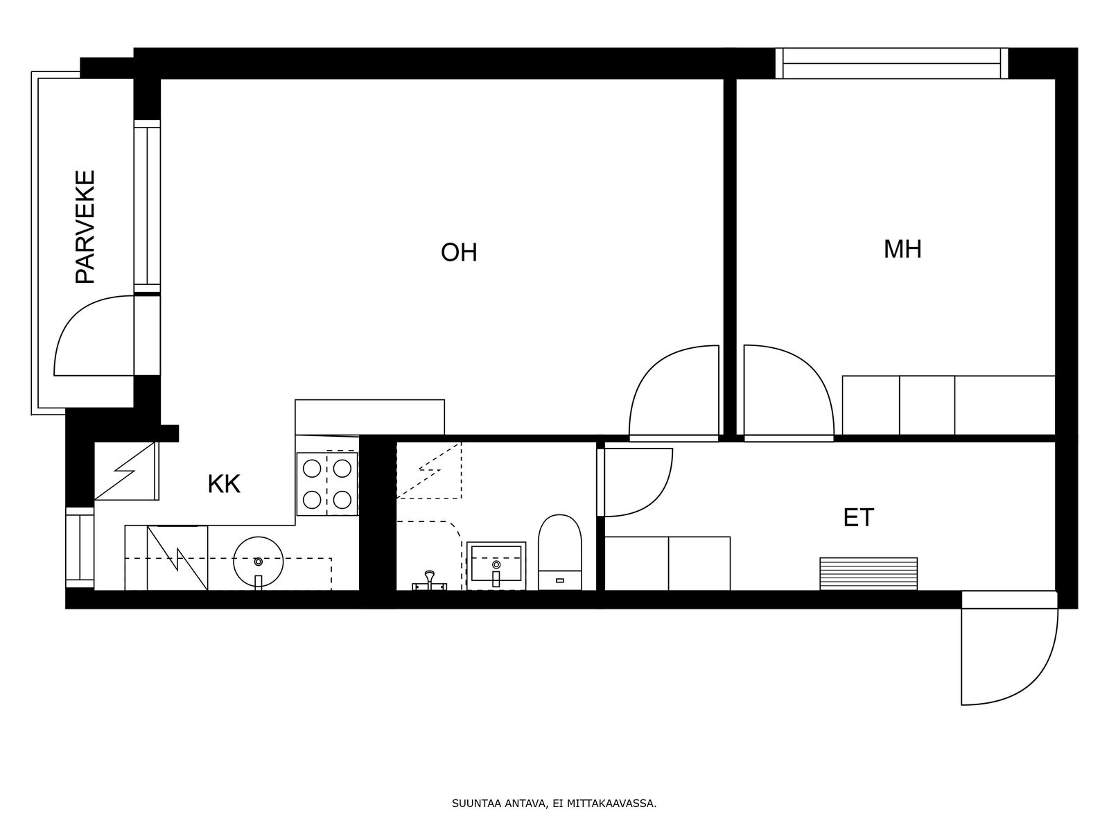
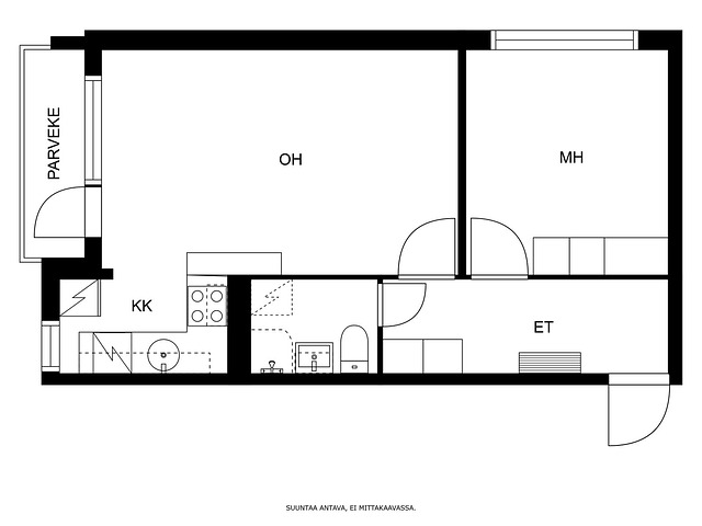
Pohjakuva

Perustiedot
- Sijainti
- Venlankatu 6 A, 05830, Viertola, Hyvinkää
- Omistusmuoto
- Omistusasunto
- Huoneluku
- 2
- Asuinpinta-ala
- 40 m²
- Muu pinta-ala
- 0 m²
- Kokonaispinta-ala
- 40 m²
- Pinta-alan peruste
- Isännöitsijäntodistuksen mukainen, Yhtiöjärjestyksen mukainen
- Lisätiedot pinta-alasta
- Edellä mainittu pinta-ala ei ole tarkistusmitattu ja saattaa tämän ikäisessä kohteessa poiketa olennaisestikin huoneiston nykyisen ja rakentamisaikaisen mittaustapojen ja standardien mukaan laskettavasta pinta-alasta. Huoneiston todellinen pinta-ala voi siis olla yhtiöjärjestyksessä, isännöitsijäntodistuksessa ja esitteessä mainittua pienempi tai suurempi.
- Kohteen tyyppi
- Kerrostalo
- Kerros
- 4 / 5
- Rakennusvuosi
- 1965
- Käyttöönottovuosi
- 1965
- Kohde myydään vuokrattuna
- Ei
- Vapautuminen
- Heti
Hinta ja kustannukset
- Velaton hinta
- 83 000 €
- Myyntihinta
- 80 400,51 €
- Velkaosuus
- 2 599,49 €
- Yhtiövastike
- Hoitovastike 248 € / kk, Rahoitusvastike 38 € / kk, Yhtiövastike yhteensä 286 € / kk
- Neliöhinta
- 2 075 € / m²
- Lisätietoja maksusta
- Lisätietoja vastikkeista: Vesimaksu kulutuksen mukaan, kylmävesi 4,68 €/m3, lämmin 8,00 €/m3. Autopaikat: lämmin 20,00 €/kk, kylmä 15 €/kk. Kaupanteon yhteydessä maksetaan varainsiirtovero 1,5 % velattomasta kauppahinnasta
Tilat ja materiaalit
- Keittiön kuvaus
- Keittiö uusittu 2025.
- Keittiön lattiat
- Laminaatti
- Keittiön varusteet
- Jääkaappipakastin, liesituuletin, ja astianpesukone
- Liesi
- Keraaminen liesi
- Kylpyhuone
- Kylpyhuone uusittu 2016.
- Kylpyhuoneen seinät
- Kaakeli
- Kylpyhuoneen lattiat
- Laatta
- Kylpyhuoneen varusteet
- Lattialämmitys, suihku, pesukoneliitäntä, ja wc-istuin
- Makuuhuoneiden lukumäärä
- 1
- Makuuhuoneiden seinät
- Maali
- Makuuhuoneiden lattiat
- Laminaatti
- Olohuoneen seinät
- Maali
- Olohuoneen lattiat
- Laminaatti
Lisätiedot
- Asunnon kunto
- Hyvä
- Parveke
- Ulostyönnetty parveke
- Hissi
- Kyllä
Taloyhtiö ja kiinteistö
- Taloyhtiön nimi
- Asunto Oy Venlankatu 6
- Isännöitsijätoimisto
- Isännöintipalvelu Isarvo Oy Uusimaa
- Isännöitsijän nimi
- Virpi Nikkanen
- Isännöitsijän sähköposti
- [email protected] (toimisto), [email protected]
- Isännöitsijän puhelin
- 0447655961
- Taloyhtiön lisätiedot
- Tietoja lainojen pituuksista: 3. Laina -710, päättymispäivä: 31.12.2037, korko: 4.4220, 79.174.92 €/30.4.2025. Viemärik.laina-60000: päättymispäivä: 30.11.2036, korko: 3.4630, 34.763.16 €/30.4.2025. Kph laina-251: päättymispäivä: 30.06.2031, korko: 5.1840, 10.609.93 €/30.4.2025. 20 000 € limiitti liitetty pankkitiliin, käytetty 0.00 €/6.5.2024. Osakaslyhennyksistä pankki perii ylimääräisiä kuluja riippuen lyhennyspäivästä. Tietoja sopimuksista: Ennen asuntoremontin alkamista on teetettävä haitta-aine kartoitus.
- Tontin pinta-ala
- 1 816 m²
- Tontin omistus
- Oma
- Rakennusmateriaali
- Betoni
- Lämmitysjärjestelmä
- Kaukolämpö
- Kattotyyppi
- harja
- Katemateriaali
- pelti
- Lisätietoja kiinteistönhoidosta
- Huoltoyhtiö
- Taloyhtiössä on
- Väestönsuoja, urheiluvälinevarasto, ja sauna
- Kohteesta on energiatodistus
- Kyllä
- Energialuokka
- D2018
- Lisätietoja energiatodistuksesta
- Viimeinen voimassaolopäivä 10.01.2032
- Taloyhtiöön kuuluu
- Ilmanvaihto: koneellinen, yhtiössä on kaapeli -tv.
- Lisätietoja liikenneyhteyksistä
- Erinomaiset liikenneyhteydet.
- Lisätietoja huoneiston autopaikasta
- Edellä mainittu pinta-ala ei ole tarkistusmitattu ja saattaa tämän ikäisessä kohteessa poiketa olennaisestikin huoneiston nykyisen ja rakentamisaikaisen mittaustapojen ja standardien mukaan laskettavasta pinta-alasta. Huoneiston todellinen pinta-ala voi siis olla yhtiöjärjestyksessä, isännöitsijäntodistuksessa ja esitteessä mainittua pienempi tai suurempi.
- Lisätietoja taloyhtiön autonsäilytyspaikoista
- Autopaikat ovat taloyhtiön hallinnassa ja jaetaan jonotuslistan mukaan.
- Piha-autopaikkoja
- 12 kpl
- Taloyhtiöllä sauna
- Kyllä
- Lisätiedot kaavoituksesta
- asemakaava, (019) 45 911 Hyvinkään kaupunki
- Asbestikartoitus
- Ei
- Lisätietoa asbestikartoituksesta
- Lain mukaan purettavien materiaalien asbesti pitää kartoittaa ennen purkutöitä jos rakennus on rakennettu ennen vuotta 1994. Jos osakas aikoo remontoida tällaisessa talossa olevaa huoneistoaan, hänen tulee teettää kustannuksellaan asbestikartoitus purettaviin materiaaleihin.
- Taloyhtiön kiinnitykset
- 427 025,52 €
Tehdyt remontit
OLENNAISET KORJAUKSET 2000 - 2021:
Julkisivut, ikkunat ja parvekkeet peruskorjattu 2000
Lämmitysjärjestelmä tasapainotettu ja termostaatit uusittu 2003
Kaapeli-TV 2004
Lämmönvaihdin ja käyttövesiputkisto uusittu 2012
Vesikaton peltikorjaukset 2013, vesikaton maalaus v. 2014
Viemäreiden kuntotutkimus ja viemäritukosten aukaisu ja LVI korjaukset
Väestösuojan tarpeiston uusiminen Hissin korjaukset ja hissin kuntokartoitus 2016
Yhden kylpyhuoneen korjaus 2016
Viemärisaneeraus, ilmastoinnin nuohous ja säätö syksy 2016
Vesikaton huoltomaalauksen takuutarkastus 2016
Valokuituliittymän hankinta (kaapeli tv ja netti) 2017
Väestösuojan tarkastus 2018
Kahden kylpyhuoneen korjaus 2019
Hissin kannatinköysien uusinta 2020
Yhden kylpyhuoneen korjaus 2021
Tulevat remontit
TULEVAT KORJAUKSET JA HUOLLOT 2024 - 2028 (hallitus 19.3.2024):
Pihan kunnostusta ja normaalit huoltotehtävät.
Taloyhtiön osuus alkuperäisten kylpyhuoneiden korjauksissa 1 - 3 vuosittain/ tarpeen mukaan, vesieristeeseen saakka.
Varautuminen hissin modernisointiin (kuntoarvio tehty 2016).
Porrastasanteiden pinnoitteiden uusinta / pinnoituksen selvitys kauden lopussa.
Lukostojen uusinta, väestönsuojan tarkastus 2029