Versotie 6

05440, Metsäkalteva, Hyvinkää
5h + avok + khh + kph + s + erill. wc + tekn. tila + vilpola + terassi
339 000 €
137 m²
Kohteen tyyppi
Omakotitalo
Rakennusvuosi
2021
Seuraava näyttö
Ei tiedossa
Tontti
Vuokra
Tätä asuntoa myy Can Zhang, Myyntineuvottelija
Roof Hyvinkää | ROOF LKV Keski-Uusimaa Oy
Asuntoesittely
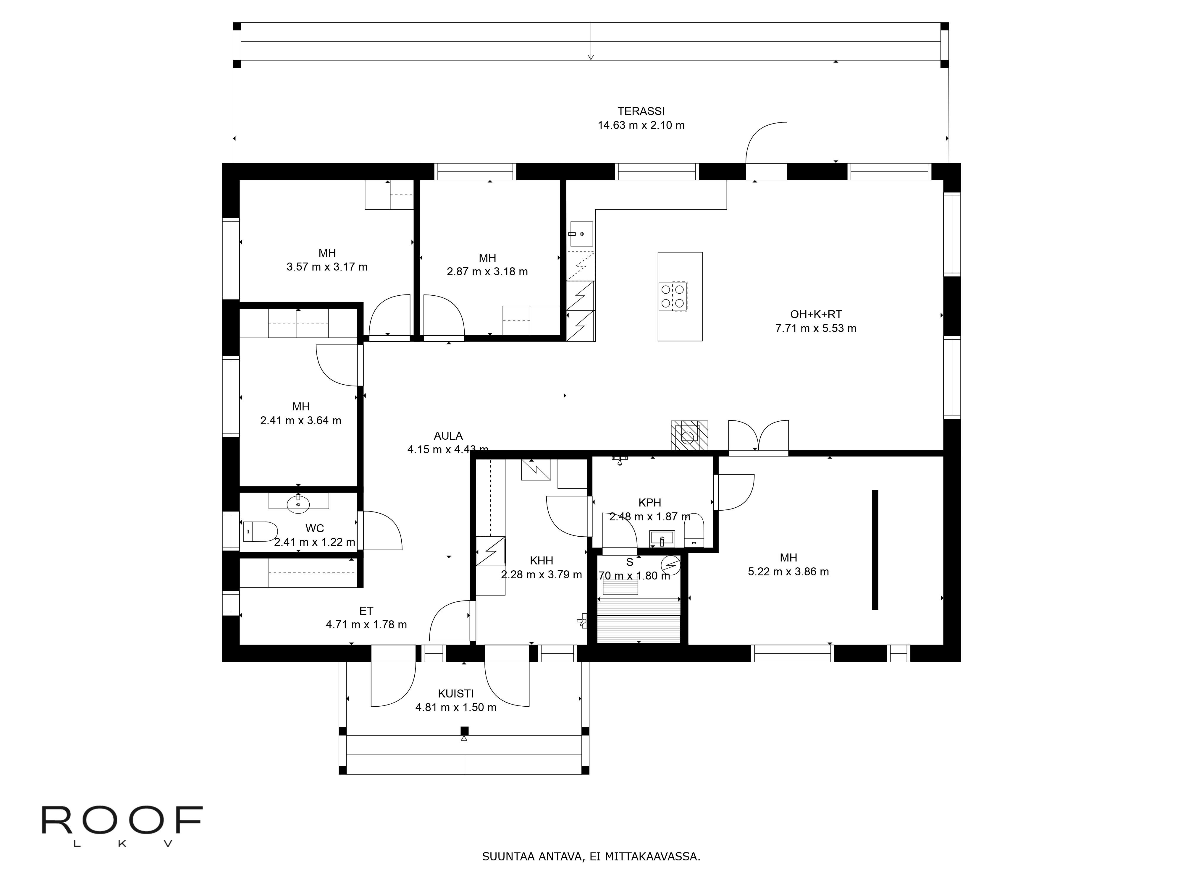
Yhden tason talo, jossa on selkeä ja toimiva pohjaratkaisu.
Kodin sydämen muodostaa olohuoneen ja keittiön yhdistelmä, josta on kulku terassille. Olohuoneessa on varaava takka, ja sen viereinen huone sopii hyvin makuuhuoneeksi tai työtilaksi. Keittiössä on saareke sekä runsaasti työskentely- ja säilytystilaa. Talossa on neljä makuuhuonetta. Kaksi kylpyhuonetta, joista toisessa on sauna, tuovat arkeen joustoa. Lisäksi erillinen wc lisää toimivuutta. Kodinhoitohuoneesta on oma uloskäynti. Lämmitysjärjestelmä: vesi-ilmalämpöpumppu, sähkö. Tontti on kooltaan 830 m² (vuokratontti, vuokranantajana Hyvinkään kaupunki). Piha-alueella on terassi ja nurmikkoa sekä autokatos ja varasto. Versotie 6 sijaitsee rauhallisella pientaloalueella Hyvinkäällä, lyhyen matkan päässä arjen palveluista. Lähistöllä on kouluja, päiväkoteja ja kauppoja. Alue tarjoaa hyvät ulkoilumahdollisuudet ja vehreät maisemat. Hyvät liikenneyhteydet takaavat sujuvan kulun niin Hyvinkään keskustaan kuin lähikuntiin. Palvelut Suomeksi, service in English and in Chinese! ESITTELY & MYYNTI:  Can (Kani) Zhang 050 571 3471 [email protected]
Pohjakuva
Perustiedot
Sijainti
Versotie 6, 05440, Metsäkalteva, Hyvinkää
Huoneluku
5
Asuinpinta-ala
137 m²
Muu pinta-ala
19 m²
Kokonaispinta-ala
156 m²
Lisätiedot pinta-alasta
Pääpiirustuksen (pohja) mukaan huoneistoala on 137,0 m2, kerrosala on 154,0 m2. Talousrakennuksen kerrosala on pääpiirustuksen (asemapiirustus) mukaan 19 m2. Pinta-alaa ei ole tarkistusmitattu.
Kohteen tyyppi
Omakotitalo
Kerros
1
Rakennusvuosi
2021
Lisätietoja rakennusvuodesta
Osittainen käyttöönottokatselmus on tehty 26.01.2022 Lopputarkastus on tehty 03.09.2025.
Käyttöönottovuosi
2022
Kohde myydään vuokrattuna
Ei
Vapautuminen
Sopimuksen mukaan
Hinta ja kustannukset
Myyntihinta
339 000 €
Keskimääräinen lämmityskustannus
160 € / kk
Sähköliittymä siirtyy
Kyllä
Neliöhinta
2 474,45 € / m²
Lisätietoja maksusta
Vesilasku: noin 60 €/kk Kiinteistövero 2025 620,86 €
Kotivakuutus
Tilat ja materiaalit
Keittiön kuvaus
Varustus: Induktioliesi, Liesituuletin, Uuni, Hana, Kaapisto, Allas, Astianpesukone, Jääkaappi, Pakastin, Integroitu mikroaaltouuni Seinämateriaali: Maali Lattiamateriaali: Laminaatti
Kylpyhuone
Varustus: Suihku, Wc istuin, Hana, Allas, Peilikaappi, Allaskaapisto Seinämateriaali: Maali Lattiamateriaali: Laatta
Makuuhuoneet
Seinämateriaali: Maali Lattiamateriaali: Laminaatti Makuuhuone 2 Varustus: Kaapisto Seinämateriaali: Maali Lattiamateriaali: Laminaatti Makuuhuone 3 Varustus: Kaapisto Seinämateriaali: Maali Lattiamateriaali: Laminaatti Makuuhuone 4 Varustus: Kaapisto Seinämateriaali: Maali Lattiamateriaali: Laminaatti
Olohuone
Varustus (Olohuone): Takka, Ilmalämpöpumppu Seinämateriaali: Maali Lattiamateriaali: Laminaatti
Sauna
Kyllä
Saunan kuvaus
Varustus: Kiuas, Lauteet Seinät: Paneeli Lattia: Laatta
Takka
Takka
Lisätiedot
Asunnon kunto
Hyvä
Taloyhtiö ja kiinteistö
Tontin pinta-ala
830 m²
Tontin omistus
Vuokra
Tontin myyntityyppi
Koko tontti
Maanvuokraaja
Hyvinkään kaupunki, 0125866-0
Tontin tiedot
Vuokrasopimuksen voimassaolo: 10.5.2021 - 31.12.2071 Tonttipäällikkö päättää vuokratonttien myynnistä. Esitys tonttipäällikölle tontin 106-28-2751-7 olisi tällä hetkellä 54 €/m² x 830 m² = 44 820 €. Lisäksi peritään palveluhinnaston 1.1.2025 mukainen maksu 340 €.
Tontin vuosivuokra
3 055 €
Vuokra-aika päättyy
31.12.2071
Lisätiedot rakennusmateriaaleista
Puurunkoinen rakenne, ulkoverhouslaudalla.
Rakennusmateriaali
Puu
Lämmitysjärjestelmä
Vesi-ilmalämpöpumppu, Sähkö
Ilmanvaihto
Koneellinen tulo- ja poistoilmanvaihtojärjestelmä lämmöntalteenotolla
Vesijohto
Kunnallisvesi
Viemäröinti
Kunnallinen viemäriverkosto
Kattotyyppi
Harjakatto
Katemateriaali
Pelti
Rakennusoikeus
258
Lisätietoa rakennusoikeudesta
Rakennusoikeutta jäljellä 89 m² Kaavamääräykset - Erillispientalojen korttelialue (AO) Rakennusoikeus ja käyttötarkoitus: Tontille saa rakentaa yhden asunnon. Enintään 10 % rakennetusta kerrosalasta saa varata ympäristöhäiriöitä aiheuttamattomaan työ-, toimisto- tai palvelukäyttöön (esim. oman ammatin harjoittamiseen). Tontille saa rakentaa kerrosalaan sisältyvän autotallin tai talousrakennuksen, enintään 50 k-m². Rakentamisen ulkoasu ja materiaalit: Rakennusten julkisivu- ja kattomateriaalien sekä kattomuodon tulee olla yhtenäisiä. Julkisivujen väritys on vaalea. Rakennettavissa on moderni, lyhytnurkkainen cityhirsitalo. -> Pitkänurkkaiset tai pyöröhirsitalot eivät ole sallittuja. Katon tulee olla harja- tai pulpettikatto, jonka väri on punainen. -> Kattokaltevuus 1:3 - 1:6. Etäisyydet ja sijoittelu: Rakennuksen pääikkunoiden puoleinen julkisivu tulee olla vähintään 5 metrin etäisyydellä naapuritontin rajasta. Autotalli ja talousrakennus rakennetaan samoin periaattein kuin päärakennus. Autosuoja, johon ajetaan suoraan kadulta, tulee olla vähintään 5 metrin etäisyydellä kadun puoleisesta tontinrajasta. Aitaaminen: Tontin kadunpuoleiselle rajalle rakennettava 1,2 m korkea vaakalaudoitettu puuaita. -> Väriltään tumman harmaa. Tonttien aitauksessa noudatetaan yhtenäistä käytäntöä. Viherrakentaminen ja hulevedet: Olemassa oleva kasvillisuus suojeltava ja säilytettävä. Rakentamattomat, muuhun kuin kulku- tai paikoituskäyttöön jäävät alueet istutettava. Hulevesien viivytysvelvoite: -> 1 m³ viivytystilavuutta jokaista 100 m² vettäläpäisemätöntä pintaa kohden. -> Viivytysrakenteiden tulee tyhjentyä 12 tunnin kuluessa. -> Rakenteissa tulee olla ylivuoto. Tontin saavutettavuus: Kaikkiin tontin osiin oltava kadulta vähintään 3 m leveä kulkuaukko. Autopaikat: 2 autopaikkaa per asunto. Kaavamerkinnät: at = Autosäilytyspaikan ja talousrakennuksen rakennusala. Istutettava alueen osa merkitty kaavaan.
Rakennusoikeus e-luku
0.25
Kohteesta on energiatodistus
Kyllä
Energialuokka
B2018
Energiatodistuksen voimassaolo
12.5.2031
Lisätietoja liikenneyhteyksistä
- Paikallisbussi 7 kulkee suoraan Hyvinkään keskustaan ja rautatieasemalle - pysäkki sijaitsee lähikadulla. - Hyvinkään juna-asemalta pääset nopeasti Helsinkiin (n. 35 min), Riihimäelle ja Tampereelle. - Autolla likkuminen - VT 3 (E12) ja VT 54 liittymät ovat noin 10 minuutin päässä. - Metsäkaltevassa on myös hyvät kevyen liikenteen väylät, joten pyörällä ja jalkaisin liikkuminen on turvallista ja miellyttävää.
Tie perille
Kyllä
Palvelut
Palvelut löytyvät läheltä: - Metsäkaltevan koulu (esi- ja alakoulu) sekä Aamutuulen päiväkoti sijaitsevat vain lyhyen kävelymatkan päässä. - K-Market Metsäkalteva tarjoaa päivittäistavarat, Postin ja Matkahuollon palvelut. - Lähialueelta löytyvät myös laajemmat marketit, kuten S-Market Vehkoja ja K-Market Hakalantori. - Alueella on runsaasti puistoja ja leikkipaikkoja, ja palkittu Lounatuulenpuisto tuo ripauksen japanilaista puutarhatunnelmaa aivan lähelle. - Ulkoiluun kutsuvat valaistut lenkkeily- ja hiihtoreitit, kuten Lehtolan lenkki.
Kaavatilanne
Asemakaava
Kaavoitustiedot
Lisätietoa kaavoituksesta Hyvinkään kaupungilta 019 459 11 (vaihde) Lukijan tulee tutustua lähialueen kaavoitushankkeisiin ja muihin alueen tietoihin ja palveluihin huolellisesti Hyvinkään kaupungin karttapalvelun kautta: kartta.hyvinkaa.fi Lukijan on hyvä huomioida, että tässä ilmoitetut lähialueen merkittävimmät asemakaavatiedot perustuvat tilanteeseen 01.05.2025. Asemakaavat voivat päivittyä, eikä välitysliike vastaa mahdollisista muutoksista. Lukijan tulee tutustua vireillä oleviin asemakaavoihin ja muihin suunnitelmiin ennen ostotarjouksen jättämistä. Tarvittaessa välittäjä antaa lisätietoa ajankohtaisista kaavamuutoksista. Valmisteilla olevat asemakaavat per. 7.7.2025: 1. Metsäkallio Alue rajautuu pohjoisessa Hangonväylään, lännessä asemakaavoitettuun alueeseen, idässä Jokelantiehen ja etelän suunnalla Metsäkaltevan keskuspuistoon. Suunnittelualueen pinta-ala on noin 45 ha. Alueen asemakaavat laaditaan useammassa osassa länsiosasta aloittaen. 2. Metsäkaltevan keskustan alue Asemakaavamuutoksen yleisenä tavoitteena on tehostaa alueen maankäyttöä tiiviin kerrostalorakentamisen suuntaan. Nykyisen Aamutuulen päiväkodin tilat ovat käyneet ahtaaksi ja sitä on tarkoitus laajentaa noin 300 k-m2 suuruisella laajennuksella. Laajennus vaatii ase-makaavan muuttamista. Muutosalueen pinta-ala on n. 18 ha 3. Hakakallion kaupan alue Tavoitteena on tutkia mahdollisuutta muuttaa asemakaavaa siten, että alueelle on mahdollista sijoittua päivittäistavarakauppa ja muuta alueelle soveltuvaa kaupallista ja toimitilarakentamista sekä tarkastella alueelle suunniteltujen liikennejärjestelyjen muutosten tuomia muutostarpeita tonttiliittymien, ajoyhteyksien ja katujen tilavarausten osalta. 4. Kravunlaakso II Metsäkaltevan asuinalueen laajentaminen mm. Keskustaajaman osayleiskaavan periaatteiden mukaisesti. Tavoitteena on suunnitella Kravunlaakson alueesta tonttitarjonnaltaan monipuolinen ja viihtyisä pientaloalue.
Lisätietoa muista rakennuksista
Päätalon lisäksi myös autokatos- ja varastorakennus.