Vilkontie 196
56710, Miettilä, Rautjärvi
7h,k,4kph,5wc,s,pkh,khh
119 000 €
200 m²

Tätä asuntoa myy Riitta Niskanen, Kiinteistönvälittäjä, LKV
Huoneistokeskus Oy | Imatra

Sijainti
Asuntoesittely
Rautjärven Miettilässä entinen Vilkon rajavartioasema on vuosien saatossa remontoitu mittavasti asumiskäyttöön; hulppeat ja valoisat tilat tarjoavat isollekin perheelle toimivat tilat asumiseen, harrastamiseen sekä sukulaisille tai ystäville myös majoittumiseen. Maalampö on asennettu 2021 ja varaava takka 2008, jotka pitävät kiinteistön lämmityskulut kohtuullisina. Vajaan hehtaarin tontilla sijaitsee myös talousrakennus autotalleineen ja runsaine varastotiloineen.
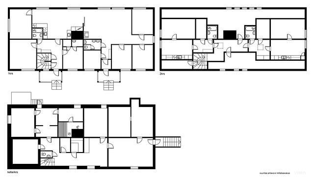
Pohjakuva

Perustiedot
- Sijainti
- Vilkontie 196, 56710, Miettilä, Rautjärvi
- Huoneluku
- 6
- Asuinpinta-ala
- 200 m²
- Muu pinta-ala
- 376 m²
- Kokonaispinta-ala
- 576 m²
- Kohteen tyyppi
- Omakotitalo
- Kerros
- 3
- Käyttöönottovuosi
- 1955
- Kohde myydään vuokrattuna
- Ei
- Vapautuminen
- Sopimuksen mukaan
Tilat ja materiaalit
- Keittiön lattiat
- Lauta
- Keittiön seinät
- Maali
- Keittiön varusteet
- Jääkaappipakastin, astianpesukone, erillisuuni, liesituuletin, ja liesitaso
- Liesi
- erillisuuni liesitaso
- Kylpyhuone
- kylpyhuoneissa lattiat laattaa ja seinäpinnat kaakelia, saunan yhteydessä olevassa pesuhuoneessa betonilattia ja seinäpinnat maalatut/kaakeloidut
- Kylpyhuoneen seinät
- Maali ja kaakeli
- Kylpyhuoneen lattiat
- Laatta ja betoni
- Kylpyhuoneen varusteet
- Pesukoneliitäntä, peilikaappi, suihku, suihkukaappi, ja peili
- WC Lukumäärä
- 5
- Erillinen WC
- lattiat laatoitetut, seinät kaakeloidut, osassa peilit ja osassa peilikaapit
- WC:n lattiat
- Laatta
- WC:n seinät
- Kaakeli
- Makuuhuoneiden seinät
- Maali
- Makuuhuoneiden lattiat
- Muovimatto
- Olohuoneen seinät
- Maali
- Olohuoneen lattiat
- Laminaatti
- Kodinhoitohuoneen varusteet
- Pesukoneliitäntä
- Kodinhoitohuoneen seinät
- Maali
- Kodinhoitohuoneen lattiat
- Betoni
- Kohteen säilytystilat
- Vinttikomero
- Sauna
- Kyllä
- Kiuas
- Puukiuas
- Takka
- Takka
Lisätiedot
- Asunnon kunto
- Tyydyttävä
- Lisätietoa katon pintamateriaaleista
- lautaa tai maalattua levyä
- Muuta kauppaan kuuluvaa
- Lisätietoja sisältyvistä varusteista: kiinteät valaisimet, matontamppausteline, pyykinkuivausteline, verhotangot
Taloyhtiö ja kiinteistö
- Tontin pinta-ala
- 9 870 m²
- Tontin omistus
- Oma
- Tontin tyyppi
- Tasamaatontti
- Tontin myyntityyppi
- Koko tontti
- Tontin tiedot
- Tasainen tontti, nurmipiha, pihapuita ja pensaita
- Rakennusmateriaali
- Betoni ja puu
- Lämmitysjärjestelmä
- Maalämpö Puu vesikiertoinen patterilämmitys, uuni/takka
- Lisätietoja viemäristä
- saostuskaivoja 3 kpl
- Kattotyyppi
- harja
- Katemateriaali
- betonitiili
- Tie perille
- Kyllä
- Palvelut
- Asemanseudulla lähikauppa 9,5 km, Simpeleelle 43 km ja Imatrankoskelle 27 km
- Koulut
- Asemanseudulla 9,5 km
- Kaavatilanne
- Kaavoittamaton
- Lisätietoa muista rakennuksista
- Talousrakennus, jossa autotalli, 3 erillistä varastoa ja pollkupyörävarasto
