Vipukuja 14
90540, Ritaharju, Oulu
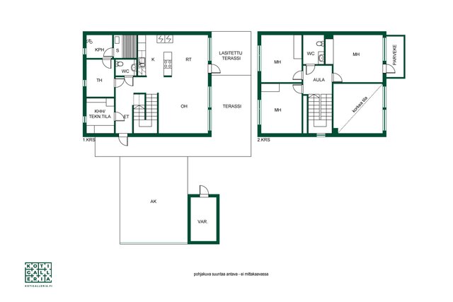
Oh+k+3mh+työhuone+khh+kph+s+aula + 2 kpl wc
339 000 €
123 m²

Tätä asuntoa myy Esa Heikkilä, Yrittäjä, LKV, asuntojen arviointi ja myynti
Kotigalleria LKV

Sijainti
Asuntoesittely
123 m² omakotitalo Ritaharju, Oulu
Tervetuloa tutustumaan tähän todella hyvin pidettyyn kauniiseen omakotitaloon joka sijaitsee Ritaharjussa rauhallisella kulmatontilla. Koti vapautuu alkuperäisiltä omistajiltaan – täällä on asuttu rakkaudella ja huolella.
Alakerta hurmaa avaruudellaan: vuonna 2024 uudistettu keittiö ja ruokailutila avautuvat saumattomasti korkeaan, valoisaan olohuoneeseen, jonka suuret ikkunat tulvivat luonnonvaloa sisään. Lisäksi alakerrasta löytyy yksi makuu- tai työhuone, erillinen wc, käytännölliset kodinhoitotilat sekä vuonna 2024 remontoitu saunaosasto.
Yläkerrassa odottavat kolme tilavaa makuuhuonetta, erillinen wc sekä päämakuuhuoneen oma parveke – täydellinen paikka aamukahville. Kauniit valkolakatut tammiparketit viimeistelevät kodin harmonisen ja laadukkaan ilmeen.
Erinomainen energiatehokkuus (Energialuokka A2018) näkyy myös asumismukavuutena ja maltillisina käyttökustannuksina.
Säilytystilaa on runsaasti: eteisen korkeat peilikaapistot, makuuhuoneiden kaapistot, päämakuuhuoneen suuri säilytysratkaisu sekä portaiden alunen tekevät arjesta sujuvaa ja siistiä.
Kaksi sivua kiertävä, osin lasitettu eteläterassi tarjoaa pitkän käyttökauden. Termomatot tuovat mukavuutta myös viileämpinä päivinä, joten terassista tulee helposti kodin toinen olohuone.
Vehreä pihapiiri puineen ja pensaineen luo viihtyisän ympäristön. Kahden auton katos, sähköauton latausasema ja tilava varasto tekevät arjesta helppoa ja toimivaa.
Luonto ja liikuntamahdollisuudet alkavat kotiovelta: talvella hiihtoladut, kesällä kuntopolut. Koulut, päiväkodit ja palvelut sijaitsevat kätevästi lähellä.
Tämä koti on valmis toivottamaan uudet asukkaansa lämpimästi tervetulleiksi.
Varaa oma esittelysi ja tule ihastumaan paikan päälle.Perustiedot
- Sijainti
- Vipukuja 14, 90540, Ritaharju, Oulu
- Huoneluku
- 5
- Asuinpinta-ala
- 123 m²
- Kokonaispinta-ala
- 123 m²
- Pinta-alan peruste
- Pinta-ala ei ole tarkistusmitattu ja todellinen pinta-ala voi olla suurempi tai pienempi, kuin ilmoitettu
- Lisätiedot pinta-alasta
- Varasto 7,2 m2 Kahden auton katos 30,5 m2
- Kohteen tyyppi
- Omakotitalo
- Kerros
- 2
- Rakennusvuosi
- 2015
- Lisätietoja rakennusvuodesta
- Aloituskatselmus 10.2.2014 Rakennekatselmus 17.3.2014 LVI-loppukatselmus 17.6.2015 Käyttöönotto- ja loppukatselmus 17.6.2015
- Käyttöönottovuosi
- 2015
- Kohde myydään vuokrattuna
- Ei
- Vapautuminen
- Sopimuksen mukaan
Hinta ja kustannukset
- Myyntihinta
- 339 000 €
- Kiinteistövero (€/vuosi)
- 477 €
- Sähköliittymä siirtyy
- Kyllä
- Neliöhinta
- 2 756,10 € / m²
- Lisätietoja maksusta
- Kaukolämmön kulutus perusmaksuineen 1350 eur / vuosi Sähkön kulutus ennen sähköauton latauskuluja 500 eur / vuosi Dokumentit kulutustiedoista välittäjältä tilattavissa dokumenteissa Tontin vuokra v.2025; 975,94 eur
Tilat ja materiaalit
- Keittiön kuvaus
- Puustellin kalusteet, keittiöön tehty päivityksiä 2024; tasot ja välitilan levy (Innokeittiö)
- Keittiön lattiat
- Parketti
- Keittiön seinät
- Maali
- Keittiön varusteet
- Jääkaappi, erillinen pakastin, erillisuuni (kiertoilma), liesi, liesituuletin (liesituuletin / talotuuletin), mikroaaltouuni (integroitu), ja astianpesukone (integroitu)
- Liesi
- Induktioliesi
- Kylpyhuoneen seinät
- Laatta
- Kylpyhuoneen lattiat
- Laatta
- Kylpyhuoneen varusteet
- Suihku ja avattava ikkuna
- WC Lukumäärä
- 2
- Erillinen WC
- Alakerrassa 1 kpl erillinen wc, yläkerrassa 1 kpl erillinen wc
- WC:n lattiat
- Laatta
- WC:n seinät
- Maali ja laatta
- Makuuhuoneet
- Yläkerrassa on kolme todella tilavaa makuuhuonetta kooltaan 15m2, 14,4m2 ja 11,5m2.
- Makuuhuoneiden lukumäärä
- 3
- Makuuhuoneiden seinät
- Maali
- Makuuhuoneiden lattiat
- Parketti
- Olohuone
- Korkea huonetila (5,5 m) ja isot ikkunat antavat kivasti tilantuntua ja valoisuutta molempiin kerroksiin
- Olohuoneen seinät
- Maali
- Olohuoneen lattiat
- Parketti
- Kodinhoitohuoneen varusteet
- Pesukoneliitäntä, lattialämmitys, pesuallas, tila pesutornille, ja lattiakaivo
- Kodinhoitohuoneen seinät
- Maali
- Kodinhoitohuoneen lattiat
- Laatta
- Kodinhoitohuone
- Kodinhoitohuoneen työtaso ja välitilalevy vaihdettu 2024, Inno-Keittiö. Kodinhoitohuoneen yhteydessä peililiukuovien takana tekninen tila. Keskuspölynimuri teknisessä tilassa. Pistokkeet ala- ja yläkerrassa.
- Säilytystilojen kuvaus
- Tässä kodissa on runsaasti säilytystilaa. Eteisessä on peililiukuovet, joiden takana on säilytystilaa korotettuun huonekorkeuteen saakka. Jokaisessa kahdessa makuuhuoneessa ja yhdessä työhuoneessa on kaapistot. Kolmannessa päämakuuhuoneessa on peililiukuovet, jotka kätkevät sisäänsä suuren säilytystilaratkaisun. Lisäksi portaiden alle on jätetty tilaa säilytykselle.
- Kohteen säilytystilat
- Kylmä ulkovarasto ja kaapistot
- Sauna
- Kyllä
- Kiuas
- Sähkökiuas
- Saunan kuvaus
- Saunan lauteet lämpökäsiteltyä haapaa
- Takka
- Olohuoneessa takkavaraus
Lisätiedot
- Asunnon kunto
- Hyvä
- Parveke
- On parveke
- Parvekkeen ilmansuunta
- Etelä
- Terassi
- Kyllä
- Lisätietoja terassista
- Taloa kiertää kahdelta sivulta suuri terassi, joka suuntaa etelään. Osa terassista on lasitettu, joten terassia voi hyödyntää alkukeväästä pitkälle syksyyn. Terassin lattiaa lämmittävät termomatot ja terassiverhot tuovat hyvin näkösuojaa.
- Piha
- Takapiha etelään, kulmatontti
- Muut tilat
- Alakerrassa 7,2 m2 työhuone
- Muut kaupan kannalta merkittävät tiedot
- Kauppaan ja päiväkotiin matkaa n. 600 m, kouluun n.400m.
Taloyhtiö ja kiinteistö
- Tontin pinta-ala
- 558 m²
- Tontin omistus
- Vuokra
- Tontin tyyppi
- Tasamaatontti
- Tontin myyntityyppi
- Koko tontti
- Maanvuokraaja
- Oulun kaupunki
- Tontin vuosivuokra
- 975,94 €
- Vuokra-aika päättyy
- 31.12.2072
- Lisätiedot rakennusmateriaaleista
- Rakentaja Rakennusliike Mertte Oy
- Rakennusmateriaali
- Puu
- Lämmitysjärjestelmä
- Kaukolämpö Lattialämmitys
- Ilmanvaihto
- Koneellinen ilmanvaihto
- Vesijohto
- Kunnallisvesi
- Viemäröinti
- Kunnallinen viemäriverkosto
- Kattotyyppi
- Harjakatto
- Katemateriaali
- Huopa
- Rakennusoikeus
- 230
- Lisätietoa rakennusoikeudesta
- 180 m2 + at 50 m2
- Kohteesta on energiatodistus
- Kyllä
- Energialuokka
- A2018
- Energiatodistuksen voimassaolo
- 3.1.2036
- Liikenneyhteydet
- Bussipysäkki lähellä, sujuvat yhteydet omalla autolla, hyvät pyöräilytiet ja hyvä kulkuyhteys
- Kaavatilanne
- Asemakaava
- Rakennusvaihe
- Valmis
- Muut rakennukset
- Autokatos
- Lisätietoa muista rakennuksista
- Kahden auton katos ja varasto
Tehdyt remontit
2015 Terassin laajennus
2020 Terassin lasitus
2021 Damixa-sadesuihku kylpyhuoneeseen
2022 Komposiittiallas ja Damixa-hana keittiöön
2024 Keittiön tasojen ja välitilalevyn vaihto /Inno Keittiö/Kodin remonttimies
2024 Induktioliesi ja kylmälaitteet
2024 Khh Työtason ja välitilalevyn vaihto /Kodin remonttimies
2024 Saunan lauteet ja rakennepuut, Harvia-kiuas /Kodin remonttimies
2024 Saunan silikonien vaihto
2025 Aitojen maalaus
2025 IV-koneen vesilukon vaihto
2025 Wc-hanojen säätimien ja poresuuttimien vaihto
2025 Palovaroittimien vaihto
2025 Sähköauton latausasema
2025 Kylpyhuoneen silikonien vaihto/Nilax Oy.
