Virtakuja 4 A 4
01600, Myyrmäki, Vantaa
3h+kt
238 000 € (4 212,39 € / m²)
56,5 m²

Tätä asuntoa myy Jani Saartama, Asuntomyyjä
Huoneistokeskus Oy | Vantaa

Sijainti
Asuntoesittely
Uusi, muuttovalmis tehokolmio tarjoaa modernia asumista omalla tontilla. Fiksusti suunniteltu pohjaratkaisu tekee arjesta sujuvaa – kaksi makuuhuonetta, valoisa olohuone ja toimiva keittiö muodostavat kodikkaan kokonaisuuden.
Suuret ikkunat tuovat runsaasti luonnonvaloa, ja huolella valitut materiaalit viimeistelevät tyylikkään ilmeen.
Tämä koti sopii niin pienelle perheelle, pariskunnalle kuin kaupunkiasumisen tehokkuutta arvostavalle. Omalla tontilla asuminen tuo turvallisuutta ja pitkän aikavälin arvoa.
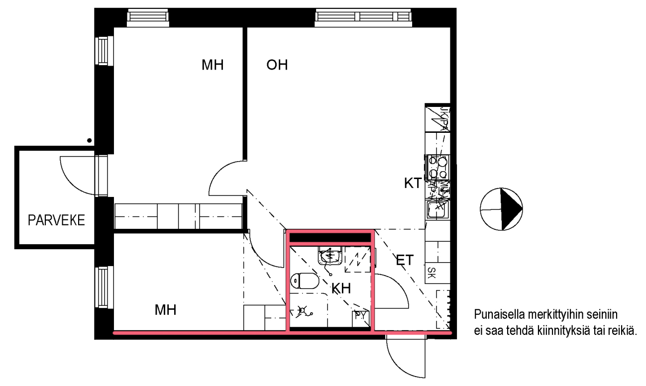
Pohjakuva

Perustiedot
- Sijainti
- Virtakuja 4 A 4, 01600, Myyrmäki, Vantaa
- Omistusmuoto
- Omistusasunto
- Huoneluku
- 3
- Asuinpinta-ala
- 56,5 m²
- Kokonaispinta-ala
- 56,5 m²
- Pinta-alan peruste
- Yhtiöjärjestyksen mukainen
- Kohteen tyyppi
- Kerrostalo
- Kerros
- 2 / 7
- Rakennusvuosi
- 2021
- Käyttöönottovuosi
- 2021
- Kohde myydään vuokrattuna
- Ei
- Vapautuminen
- Heti
Hinta ja kustannukset
- Velaton hinta
- 238 000 €
- Myyntihinta
- 69 930 €
- Velkaosuus
- 168 070 €
- Yhtiövastike
- Hoitovastike 305,10 € / kk, Rahoitusvastike 129,95 € / kk, Yhtiövastike yhteensä 435,05 € / kk
- Autopaikkamaksu
- 40 € / kk
- Saunamaksu
- 10 € / kk
- Vesimaksu
- 20 € / hlö
- Neliöhinta
- 4 212,39 € / m²
- Lisätietoja maksusta
- Lisätietoja vastikkeista: Pääomavastike aluksi 129,95 e / kk / sisältää vain lainan koron osuuden, arviolta 09/2023 saakka (5,40e/m2/kk). Lainan lyhennykset alkavat arviolta 10/2023, jonka jälkeen pääomavastike 793,26 e / kk / sisältää lainan koron ja lyhennyksen (14,04e/m2/kk). Yhtiölainan korkotason muuttuessa, myös pääomavastikkeen suuruus muuttuu. Vesimaksu on ennakko, 20e/kk/henkilö. Huoneistokohtainen vesimittaus, tasauslasku vähintään kerran vuodessa. 40,00 €/autopaikka/kk (ei sisällä mahdollista sähköauton latausta)
Tilat ja materiaalit
- Keittiön kuvaus
- Kaappien ovet ovat valkoisia, puusyykuvioisia mikrolaminaattiovia. Työtasot ovat laminaattipintaisia. Keittiöissä on kalusteuuni ja 2 tai 4 -osainen induktiotaso, liesikupu, jää-/pakastinkaappi astianpesukone sekä varaus mikroaaltouunille.
- Kylpyhuone
- Kylpyhuoneissa on liitännät ja tilavaraukset pyykinpesukoneelle ja kuivausrummulle. Vesikiertoinen lattialämmitys.
- Makuuhuoneiden lukumäärä
- 2
- Kiuas
- Sähkökiuas
- Saunan kuvaus
- Taloyhtiöllä on tilava saunaosasto, johon kuuluu etelään aukeava kattoterassi talon ylimmässä kerroksessa.
Lisätiedot
- Asunnon kunto
- Uusi
- Parveke
- Lasitettu parveke
- Parvekkeen ilmansuunta
- Etelä
- Hissi
- Kyllä
- Lisätietoa seinien pintamateriaaleista
- Asuintilojen seinät on maalattu. Keittiöissä työpöytien ja kaapistojen välissä on laminaatti. Kylpyhuoneiden seinissä on keraamista laattaa.
- Lisätietoa lattioiden pintamateriaaleista
- Asuinhuoneissa on laminaattilattia. Kylpyhuoneiden lattiassa on keraamiset laatat.
- Lisätietoa katon pintamateriaaleista
- Asuinhuoneiden katoissa on pääosin ruiskutasoitus. Keittoja eteistilojen ym. alaslasketut kipsilevykatot tasoitettu ja maalattu. Kylpyhuoneiden katot muovipinnoitettua peltiä.
Taloyhtiö ja kiinteistö
- Taloyhtiön nimi
- Asunto Oy Vantaan Virtakuja 4
- Isännöitsijätoimisto
- Walttari Oy
- Isännöitsijän nimi
- Miika Metsälahti
- Isännöitsijän sähköposti
- [email protected]
- Isännöitsijän puhelin
- 040 5200 585
- Tontin pinta-ala
- 1 242 m²
- Tontin omistus
- Oma
- Käyttö/luovutusrajoitukset
- Yhtiöjärjestys 14 § Autopaikkoja koskeva lunastusoikeus
- Rakennusmateriaali
- betonielementti
- Lämmitysjärjestelmä
- Kaukolämpö
- Kattotyyppi
- Tasakatto
- Katemateriaali
- Bitumikermi
- Lisätietoja kiinteistönhoidosta
- Huoltoyhtiö
- Taloyhtiössä on
- Pesutupa, urheiluvälinevarasto, ja sauna, huoneistokohtaiset varastot
- Kohteesta on energiatodistus
- Kyllä
- Energialuokka
- B2018
- Taloyhtiöön kuuluu
- Ulkoiluvälinevarastossa tilaa myös lastenvaunuille
- Lisätietoja taloyhtiön autonsäilytyspaikoista
- Virtakuja 4:n autopaikkoja on yhteensä 20 kpl, joista 8 kpl on pihalla ja 12 kpl autohallissa. Autohalli on kahdessa kerroksessa As Oy Virtakuja 4:n kellari- ja 1. kerroksessa.
- Piha-autopaikkoja
- 8 kpl
- Autohallipaikat
- 12 kpl
- Taloyhtiöllä sauna
- Kyllä
- Kaavatilanne
- Asemakaava
- Lisätiedot kaavoituksesta
- Vantaan kaupungin kaupunkiympäristön asiakaspalvelu, puh. (09) 8392 2242
- Rakennusvaihe
- Valmis
