Vretavägen 31
25700, KImito, Kemiönsaari
95 000 €
173 m²

Tätä asuntoa myy Mats Nyman, VD/TJ, Försäljare/Myyjä
Magnus Nyman AFM-LKV Ab Oy

Sijainti
Asuntoesittely
Vretavägen 31:ssä Kemiönsaaressa sijaitsee viehättävä omakotitalo, joka tarjoaa tilavaa asumista. Tämä vuonna 1962 valmistunut puutalo seisoo omalla 2770 m² tontillaan, ja sen aurinkoinen piha kutsuu nauttimaan ulkoilmasta.
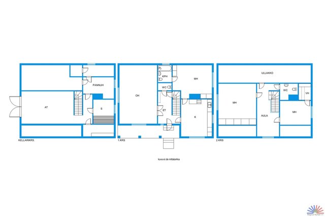
Talossa on kaksi kerrosta ja yhteensä 173 m² asuintilaa, mikä tarjoaa runsaasti tilaa perheelle tai pariskunnalle, joka arvostaa tilavuutta. Kolme makuuhuonetta ja valoisa olohuone takaavat mukavat puitteet arkeen.
Kodin lämmityksestä huolehtii energiatehokas maalämpö, joka on asennettu 2010-luvulla. Tämä tuo mukavuutta ja säästöjä asumiseen. Sijainti on erinomainen: koulut ja päiväkodit ovat lyhyen matkan päässä, ja Kemiön keskustan palvelut ovat helposti saavutettavissa.
Tämä talo on mainio valinta niille, jotka etsivät tilavaa ja käytännöllistä kotia mutta silti lähellä palveluita. Tartu tilaisuuteen ja tule tutustumaan tähän kodikkaaseen taloon!
På Vretavägen 31 på Kimitoön ligger ett egnahemshus som erbjuder rymligt boende. Huset byggt 1962, står på en egen tomt på 2 770 m², och dess soliga gård inbjuder till att njuta av naturen.
Huset har två våningar och totalt 173 m² boyta, vilket erbjuder gott om plats för en familj eller ett par som uppskattar utrymme. Tre sovrum och ett ljust vardagsrum säkerställer en bekväm miljö för vardagen.
Bostaden värms upp av energieffektiv jord/berg värme, som installerades på 2010-talet. Detta ger komfort och besparingar i boendet. Läget är utmärkt: skolor och daghem ligger på kort avstånd, och Kimito centrum med sin service.
Perustiedot
- Sijainti
- Vretavägen 31, 25700, KImito, Kemiönsaari
- Huoneluku
- 4
- Asuinpinta-ala
- 173 m²
- Muu pinta-ala
- 117 m²
- Kokonaispinta-ala
- 290 m²
- Pinta-alan peruste
- Pinta-ala ei ole tarkistusmitattu ja todellinen pinta-ala voi olla suurempi tai pienempi, kuin ilmoitettu
- Lisätiedot pinta-alasta
- Ei tarkistusmitattu. Pinta-alat saattavat tämän ikäisissä kohteissa (rekisteröity ennen 01.01.1992) poiketa olennaisestikin asuinrakennusten nykyisten mittaustapojen ja standardien (SFS 5139) mukaan laskettavasta asuintilojen pinta-alasta. Pinta-ala voi siis olla edellä mainittua pienempi tai suurempi.
- Kohteen tyyppi
- Omakotitalo
- Kerros
- 2
- Rakennusvuosi
- 1962
- Kohde myydään vuokrattuna
- Ei
- Vapautuminen
- Sopimuksen mukaan
Tilat ja materiaalit
- Keittiön lattiat
- Muovimatto
- Keittiön seinät
- Maali
- Keittiön varusteet
- Jääkaappipakastin, uuni, ja liesi
- Liesi
- Keraaminen liesi ja puuhella
- Kylpyhuoneen seinät
- Kaakeli
- Kylpyhuoneen lattiat
- Laatta
- Kylpyhuoneen varusteet
- WC-istuin, suihkukaappi, ja pesukoneliitäntä
- WC Lukumäärä
- 1
- WC:n lattiat
- Muovimatto
- WC:n seinät
- Maali
- Makuuhuoneiden lukumäärä
- 3
- Makuuhuoneiden seinät
- Maali ja tapetti
- Makuuhuoneiden lattiat
- Muovimatto
- Olohuoneen seinät
- Tapetti
- Olohuoneen lattiat
- Muovimatto
- Kohteen säilytystilat
- Ullakko ja seinäkaapit
- Sauna
- Kyllä
- Kiuas
- Puukiuas
Lisätiedot
- Asunnon kunto
- Tyydyttävä
- Piha
- Aurinkoinen piha. Kaunis metsäinen piha, jossa kasvaa mustikoita ja puolukoita.
Taloyhtiö ja kiinteistö
- Tontin pinta-ala
- 2 770 m²
- Tontin omistus
- Oma
- Tontin tyyppi
- Tasamaatontti
- Tontin myyntityyppi
- Koko tontti
- Rakennusmateriaali
- Puu
- Lämmitysjärjestelmä
- Maalämpö
- Vesijohto
- Kunnallisvesi
- Viemäröinti
- Kunnallinen viemäriverkosto
- Kattotyyppi
- Harjakatto
- Katemateriaali
- Pelti
- Kohteesta on energiatodistus
- Ei lain edellyttämää energiatodistusta
- Tie perille
- Kyllä
- Palvelut
- Kemiön keskusta n.
- Koulut
- Kimitonejdens högstadie n. 2km Kimitoöns Gymnaisum n. 2km Kemiönsaaren keskuskoulu n.2km Amosparken n. 3km
- Kaavatilanne
- Yleiskaava
- Rakennusvaihe
- Valmis
- Asbestikartoitus
- Ei
Tehdyt remontit
maalämpö asenettu 2010 luvulla
